一、脚手架工程量计算一般规则:
1、建筑物外墙脚手架,凡设计室外地坪至檐口(或女儿墙上表面)的砌筑高度在15m以下的,按单排脚手架计算;砌筑高度在15m以上的或砌筑高度虽不足15m,但外墙门窗及装饰面积超过外墙表面积60%以上的,均按双排脚手架计算。
2、建筑物内墙脚手架,凡设计室内地坪至顶板下表面(或山墙高度的1/2处)的砌筑高度在3.6m以下的,按里脚手架计算;砌筑高度超过3.6m以上时,按单排脚手架计算。
3、石砌墙体,凡砌筑高度超过1m以上时,按外脚手架计算。
4、计算内、外墙脚手架时,均不扣除门、窗洞口、空圈洞口等所占的面积。
5、同一建筑物高度不同时,应按不同高度分别计算。
6、现浇钢筋混凝土框架柱、梁按双排脚手架计算。
7、围墙脚手架,凡室外自然地坪至围墙顶面的砌筑高度在3.6m以下的,按里脚手架计算;砌筑高度超过3.6m以上时,按单排脚手架计算。
8、室内天棚装饰面距设计室内地坪在3.6m以上时,应计算满堂脚手架,计算满堂脚手架后,墙面装饰工程不再计算脚手架。
9、滑升模板施工的钢筋混凝土烟筒、筒仓,不另计算脚手架。
10、砌筑储仓,按双排脚手架计算。
11、储水(油)池,大型设备基础,凡距地坪高度超过1.2m以上的,按双排脚手架计算。
12、整体满堂钢筋混凝土基础,凡其宽度超过3m时,按其底板面积计算满堂脚手架。
二、砌筑脚手架工程量计算:
1、外脚手架按外墙外边线长度,乘以外墙砌筑高度以平方米计算,突出墙外宽度在24cm以内的墙垛,附墙烟筒等不计算脚手架;宽度超过24cm以外时按图示尺寸展开计算,并入外脚手架工程量之内。
2、里脚手架按墙面垂直投影面积计算。
3、独立柱按图示柱结构外围周长另加3.6m乘以砌筑高度以平方米计算,套用相应外脚手架定额。
三、现浇钢筋混凝土框架脚手架工程量计算:
1、现浇钢筋混凝土柱,按柱图示周长尺寸另加3.6,乘以柱高以平方米计算,套用相应外脚手架定额。
2、现浇钢筋混凝土梁、墙,按设计室外地坪或楼板底之间的高度,乘以梁、墙净长以平方米计算,套用相应双排外脚手架定额。
四、装饰工程脚手架工程量计算:
1、满堂脚手架,按室内净面积计算,其高度在3.6-5.2m之间时,计算基本层,超过5.2m时,每增加1.2m按增加一层计算,不足0.6m的不计。表达式如下:
满堂脚手架增加层==[室内净高度-5.2]/1.2(m)
2、挑脚手架,按搭设长度和层数,以延长米计算。
3、悬空脚手架,按搭设水平投影面积以平方米计算。
4、高度超过3.6m墙面装饰不能利用原砌筑脚手架时,可以计算装饰脚手架。装饰脚手架按双排外脚手架乘以0.3计算。
五、其他脚手架工程量计算:
1、水平防护架,按实际铺板的水平投影面积,以平方米计算。
2、垂直防护架,按自然地坪至最上一层横杆之间的搭设高度,乘以实际搭设长度,以平方米计算。
3、架空运输脚手架,按搭设长度以延长米计算。
4、烟筒、水塔脚手架,区别不同搭设高度,以座计算。
5、电梯井脚手架,按单孔以座计算。
6、斜道,区别不同高度,以座计算。
7、砌筑储仓脚手架,不分单筒或储仓组均按单筒外边线周长,乘以设计室外地坪至储仓上口之间高度,以平方米计算。
8、贮水(油)池脚手架,按外壁周长乘以室外地坪至池壁顶面边线之间高度,以平方米计算。
9、大型设备基础脚手架,按其外形周长乘以地坪至外形顶面边线之间高度,以平方米计算。
10、建筑物垂直封闭工程量按封闭面的垂直投影面积计算。
六、安全网工程量计算:
1、立挂式安全网按架网部分的实挂长度乘以实挂高度计算。
2、挑出式安全网按挑出的水平投影面积计算。
七、装饰工程脚手架:
1、抹灰中零星项目:普通腰线、如阳栏板板抹灰、压顶抹灰、楼梯侧面抹灰;复杂腰线,外墙3道棱及以上的抹灰;黑板抹灰;沟壁抹灰;装饰线条抹灰;
2、楼地面中定额规定“二十、楼地面零星项目适用于楼梯侧面、台阶侧面、小便池、蹲台、池槽以及每个平面面积在1m2以内定额未列项目的块料工程‘;
3、混凝土中定额规定:”(10)零星构件,适用于现浇混凝土扶手、柱式栏杆及其他未列项目且单件体积在0.05m3以内的小型构件,其工程量按实体积计算,如压顶抹灰、挑檐、腰线抹灰、面积在1平方内的抹灰等。
工程量=14.8×3.36×2+20.40×3.32×2m2=234.912m2
综合基价:应执行4—14子目 271.86元/100m2
综合基价合计=271.86×234.912/100=638.632元
(2)第3层框架单梁脚手架工程量的计算。根据内部的主、次粱应执行单梁脚手架
的规定,KJ-2、KJ-3、LL 2、LL-3、LL-4、L-1应计取单梁脚手架。
工程量=14.80×3.36×2+20.40×3.32×3+5.10×3.36×6m2=405.456m2
综合基价合计=271.86×405.456/100=1102.273元
(3)柱子脚手架包括在梁脚手架内,不另计算。
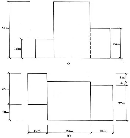
B.根据下图图示尺寸,计算建筑物外墙脚手架工程量及其综合基价。
单排脚手架(15m高)=(26+12×2+8)×15m2=870m2
双排脚手架(27m高)=32×27m2=864m2
双排脚手架(24m高)=(18×2+32)×24m2=1632m2
双排脚手架(36m高)=26×36m2=936m2
双排脚手架(5lm高)=(18+24×2十4)×51m2=3570m2
(2)综合基价合计:
1)单排脚手架(15m高):应执行4—2子目 719.97元/100m2
综合基价合计=719.97×870/100=6263.739元
2)双排脚手架(27m 高):应执行4—6子目 1578.03元/100m2
综合基价合计=1578.03×864/100=13634.179元
3)双排脚手架(24m 高):应执行4—5子目 1109.91元/100m2
综合基价合计=1109.91×1632/100=18113.731元
4)双排脚手架(36m 高):应执行4—7子目 2071.86元/100m2
综合基价合计=2071.86×936/100=19392.610元
5)双排脚手架(51m 高):应执行4—8子目 2811.06元/100m2
高度=(14.8+0.6)m=15.4m
(1)工程量计算:130m×15.4m=2002m2
(2)套定额:本工程室外地坪至女儿墙顶面高度为15.4m,按定额规定15m以上应套24m以内双排脚手架。应执行4—5子目,定额计量单位l00m2,套定额时按定额计量单位:2002/100=20.02(100m2)
定额编号
分部分项工程名称
单位
数量
单价/元
金额(元)
4—5
双排脚手架24m内
100m2
20.02
1109.91
22220.398
每根柱的脚手架工程量=(柱断面周长+3.6m)×柱高
=[(0.5+0.3)×2+3.6](4.45+0.38+0.12)m2=25.74m2
10根柱的脚手架工程量=25.74×l0m2=257.4m2
(2)梁脚手架工程量:
每根梁的脚手架工程量=设计室内地坪(或楼板上表面)至梁底的高度×梁净长
6m开间粱脚手架工程量=(4.45+0.38-0.15)×(6-0.5)×8m2=205.92m2
12m跨度梁脚手架工程量=4.68×(12-0.5)×5m2=269.1m2
(3)假设该高层住宅楼为12层,现浇钢混凝土框架柱、梁按双排脚手架计算,若施工组织设计采用钢管架,则总工程量:
(257.4+205.92+269.1)m2×12=8789.04m2
综合基价:应执行4—8子目 2811.06元/100m2
综合基价合计=2811.06×8789.04/100=247065.188元
[(38.5+0.24)×2+(8+0.24)×2]×(12+0.3)m2=1089.29m2
综合基价:应执行4-2子目 719.97元/100m2
综合基价合计=719.97×1089.29/100=7842.561元
(2)里脚手架工程量:
[(8-1.8-0.24)×10+(3.5-0.24)×8]×[(3-0.12)×3+3]=997.32m2
综合基价:应执行4-20子目 147.98元/100m2
+[(5.4+11.4)×2+0.24×4]×3.8)m2=404.90m2
综合基价:应执行4-1子目 526.79元/100m2
综合基价合计=526.79×404.90/100=2132.972元
【解】围墙脚手架工程量=120×2.0m2=240.00m2
应执行4—1子目, 526.79元/100m2
综合基价合计=526.7923×88.56/100=466.525元
【解】边跨坡屋面建筑面积F=45.5×(10+0.3-0.3)m2=455.00m2
边跨平均高度h=(6+0.5+3÷2)m=8m,增加层(8—6)m=2m计2层
套定额4-1子目,综合基价:(639.37+90.55×2)元/100m2=820.47元/100m2
定额直接费=455/100×820.47元=3733.14元
边跨平屋面建筑面积=455.00 m2
高度=(9.0+0.5)m=9.5m,增加层(9.5—6)m=3.5m计3层
套定额(同上),基价为(639.37+90.55×3)元/100m2=911.02元/100m2
定额直接费=455.00÷100×911.02元=4145.14元
中跨建筑面积=(45.0+0.5)×(18+0.6)m2=846.30m2
平均高度=(10+3÷2+0.5)m=12m,增加层(12—6)m=6m计6层。
套定额(同上),基价为:(639.37+90.55×6)元/100m2=1182.67元/100m2
定额直接费=(846.30÷100×1182.67)元=10008.94元
所以定额直接费合计:
(3733.14+4145.14+10008.94)元=17887.22元
边跨坡屋面建筑面积=45.5×(10+18+10+0.3×2)=1756.30m2
工程量=【45.5+(10+0.3)×2】×(6+0.5+3÷2)+【45.5+(10+0.3)×2】×(9+0.5)+18×(10+0.5)×2=1534.75m2
综合基价:应执行4-4子目 847.80元/100m2
建筑面积=[(3.6×6+7.2+0.24)×(5.4×2+2.4+0.24)×5+(4.5+0.3)×1.83m
=1960.13m2
檐高为17m,综合基价:1109.91元/100m2
综合基价合计=1960.13÷i00×708.61元=13889.68元
若该题中技术层层高改为1.8m,则不计算建筑面积,因而不计综合脚手架,但因1.8m
>l.2m,故需将该技术层计算单项脚手架费用;若技术层改为1.0m,则不计脚手架部分的费用。
套定额9-10,但基价为53.67×2元/l00m2=107.34元/l00m2
定额直接费=600÷100×53.67×2元=644.04元
由于是多层建筑按照建筑规则,应分别计算:
多层工程量=[(3.6+7.2+0.24)+(5.4+2.4+5.4+0.24)×2] ×(3.6×4+2.3+0.3)
+(3.6×6+0.24)×3.6+(3.6+7.2+0.24)×(3.6×3+2.3)=867.888m2
综合基价:应执行4—5子目 1109.91元/100m2
综合基价合计=1109.91×867.888/100=9632.776元
单层工程量=[(1.8+0.12)×2+7.2]×3.6=39.744m2
综合基价:应执行4—1子目 526.79元/100m2